top of page
Currumbin
Project: Kitchen Renovation
Year: 2025
Interior design work undertaken in collaboration with
French Touch Building.
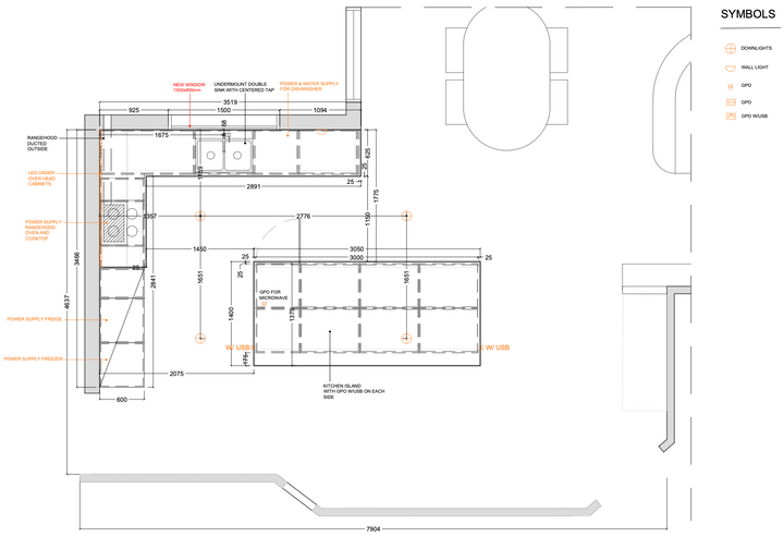
A kitchen renovation focused on creating a larger, more functional space while remaining timeless and suitable for future resale. The layout was completely reworked, including the removal of walls and the addition of a new window, resulting in an open-plan kitchen centred around a generous island designed for everyday family use.
The palette was kept natural and understated, with the Dekton Khalo benchtop used as the key feature to bring depth, authenticity, and character to the space, balanced by calm, neutral finishes throughout.









Design & Project Involvement
Project Documentation
Floorplan - Layout













Before & After




bottom of page
%20copy.png)