top of page
Brunswick Heads
A renovation of two bathrooms and a powder room designed to evoke a sense of calm and understated luxury. Inspired by boutique hotel interiors, the spaces were conceived to feel inviting, relaxing, and refined.
Earthy tones form the base of the palette, layered with textured surfaces and carefully considered patterns. The project allowed room for creative expression, enabling the design to explore pattern, texture, and detail while maintaining a cohesive, calm, and refined atmosphere throughout.
Project: Bathrooms Renovation
Year: 2025
Interior design work undertaken in collaboration
with French Touch Building.












Design & Project Involvement
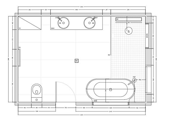
Project Documentation
Floorplan - Layout



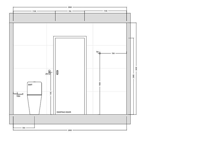
Elevation A'-A
Elevation B'-B


Elevation C'-C
Elevation D'-D
Floorplan - Layout



Elevation A'-A
Elevation B'-B


Elevation C'-C
Elevation D'-D
Before & After




bottom of page
%20copy.png)