top of page
Project: Kitchen & Bathrooms Renovation
Year: 2025
Interior design work undertaken in collaboration with
French Touch Building.
A renovation of a townhouse with a clear focus on budget control and resale value.
The design approach balances a fresh coastal aesthetic with timeless choices, using oak finishes, light tones, and neutral materials selected to appeal to a broad range of tastes.The goal was to create spaces that feel bright, cohesive, and inviting, while remaining practical, durable, and cost-effective.
Suffolk Park













Design & Project Involvement
Project Documentation
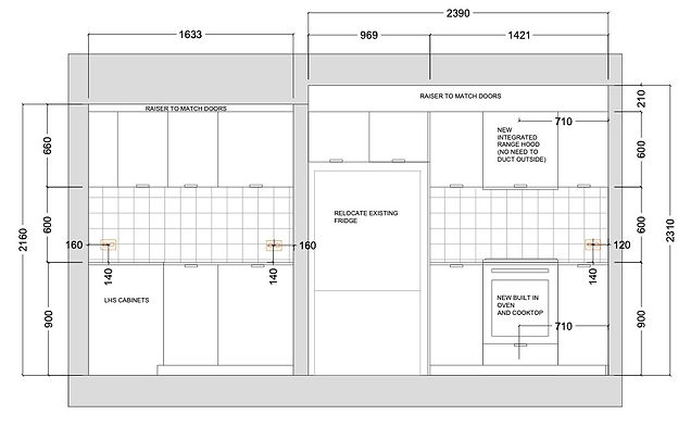
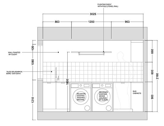
Kitchen
Floorplan - Layout

Elevation A'-A

Elevation B'-B

Elevation H'-H
Elevation F'-F


Elevation G'-G

Elevation E'-E
Elevation D'-D


Bathroom
Floorplan - Layout

Elevation A'-A
Elevation B'-B


Elevation C'-C
Elevation D'-D


Before & After




bottom of page
%20copy.png)