top of page
Robina QLD
Project: Bathroom Renovation
Year: 2024
Interior design work undertaken in collaboration with
French Touch Building.
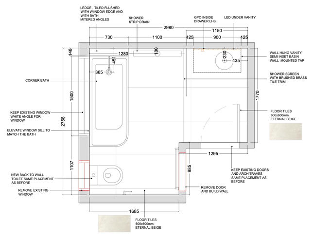
A renovation of an existing bathroom where the original layout separated the toilet from the main space. The design reconfigured both areas into a single, more generous and functional bathroom, allowing for a larger bath and improved circulation.
The project prioritised smart design decisions to meet the client’s budget while maximising both functionality and visual impact. A restrained material palette was elevated through carefully selected details, adding warmth, texture, and character to the space.






Design & Project Involvement
Project Documentation
Floorplan - Layout






Before & After




bottom of page
%20copy.png)